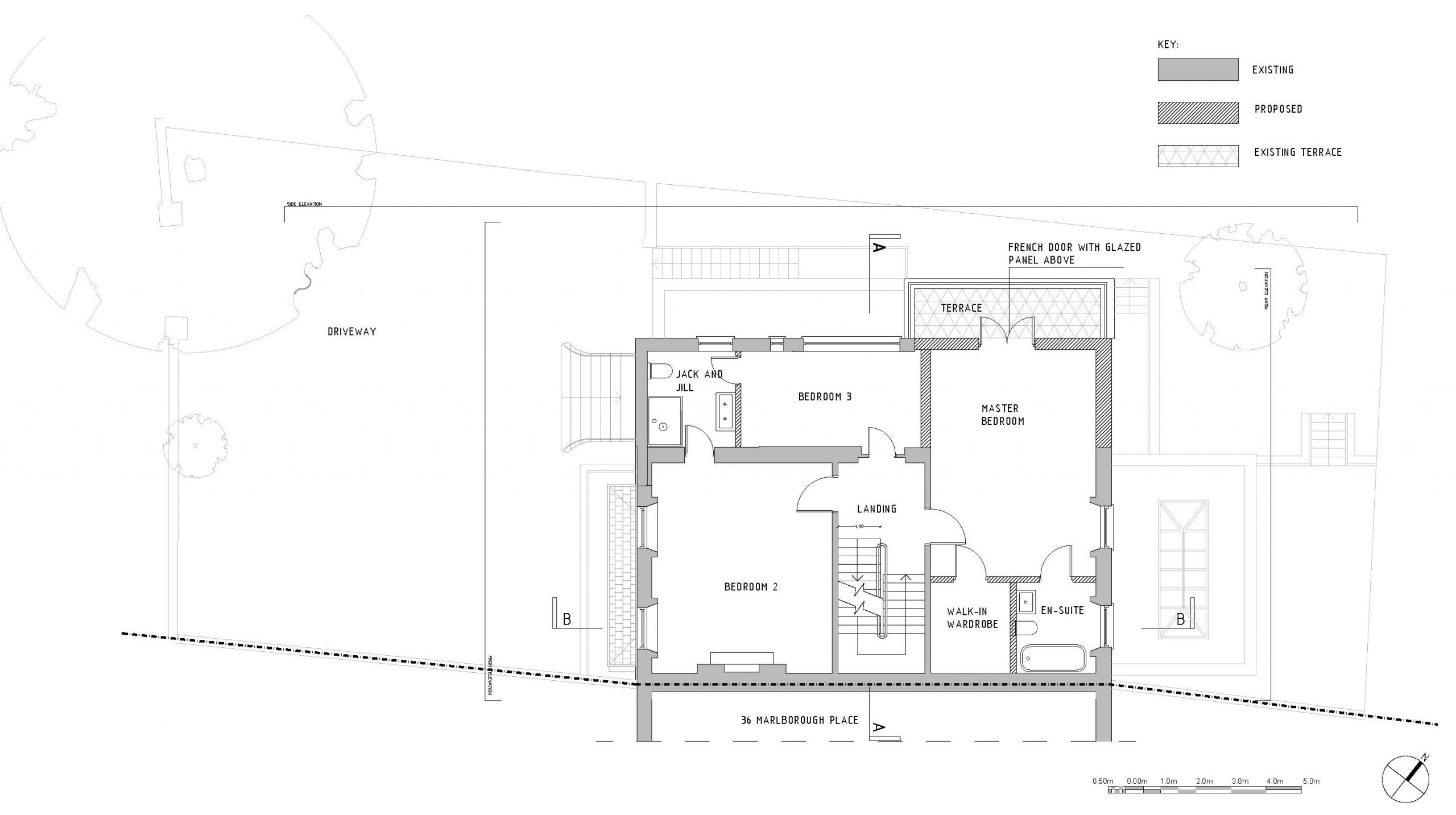
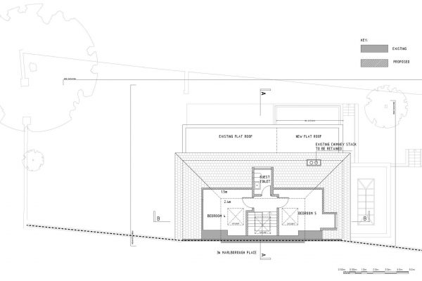
Description | Planning permission for basement, rear, and side extensions
Year Of Completion | 2023
Location | Abbey Road, St John’s Wood, London, NW8
Abbey Road, St John's Wood, NW8
About this project
Poised in a coveted location, this Abbey Road residence is set to undergo a transformative basement, rear, and side extension, along with a complete refurbishment. The planned enhancements blend modern functionality with the home’s existing charm, ensuring a timeless, high-end living experience in one of London’s most iconic neighborhoods.






